DJS-4跳閘回路監視繼電器開孔尺寸及主要性能-上海上繼科技有限公司
發表時間:2019-09-01 13:08 瀏覽次數:857 〖返回〗一、DJS-4跳閘回路監視繼電器主要性能
DJS-4型跳閘回路監秘陛電器可連續地斷路器中的跳閘回路。并對下列情況產生報警。
a)DC電源消失;
b)跳閘線圈及其引線發生故障;
c)斷路器輔助接點的故障;
d)監視繼電器本身的故障。

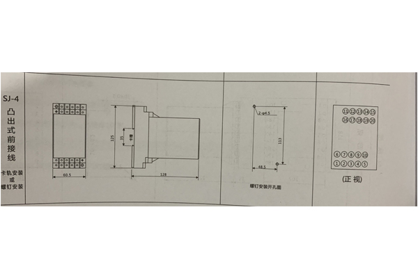
二、DJS-4跳閘回路監視繼電器開孔尺寸

三、DJS-4跳閘回路監視繼電器技術數據
4.1額定電壓:220V、110VDC。
4.2觸點形式與容量:具有二付率考換觸點和一付動斷觸點;觸點斷開容量為 DC220V, 0.1A( pf=0.4、 L/R=5ms);AC220V, 3A。
4.3延時時間>0.3s。
DJS-1跳閘回路監視繼電器技術數據圖片
4.4介質強度
繼電器各導電路對外露的非帶電金屬部分及外殼之間,輸入電路對觸點之間,應能承受2kV(有效值) , 50Hz的交流試驗電壓,歷時1min試驗,而無絕緣擊穿及閃絡現象。
4.5工作條件
a)使用地點不允許有爆炸危險的介質,周圍介質中不含有腐蝕金屬和破壞絕緣的氣體及導電介質,不允許充滿水蒸汽和有較嚴重的霉菌存在;
b)使用地點不允許有較強的振動和沖擊;
c)使用地點應具有防御雨、雪、風沙的設施;
d) 使用地點不允許超過1.5 mT的外磁感應強度,
4.6電氣抗干流繼電器應符合GB7261和GB6261 ?靜態繼電器及保護裝置的電氣抗干擾試驗? 。
公司介紹:上海上繼科技有限公司是一家專業從事電力系統繼電保護及智能電網電力自動化產品的研發、設計、生產、銷售和服務為一體的高科技公司。擁有資深繼電保護專家團隊和國內**的檢測儀器及校驗設備。同時還引用國內外先進技術,來進行技術創新。本公司的產品廣泛用于電力、工礦、鐵路、建筑等國家重大工程輸配變電系統上,產品遠銷東南亞及中東地區。產品通過國家繼電保護及自動化設備質量監督檢驗中心檢測,獲得ISO-9001:2000國際質量體系認證?!翱萍紕撔?,誠信務實”是公司的經營理念,本公司以高超的技術支持和對用戶高度負責的售后服務贏得了輸配電成套企業的信賴,且樹立了良好的信譽。
上海上繼科技有限公司(專注電力保護繼電器生產廠家)銷售熱線:021-57233089 QQ:1932551438
{以上內容僅供參考,上海上繼科技有限公司有最終解釋權}
更多繼電器精彩文章——JC-17/1沖擊繼電器技術參數及開孔尺寸





